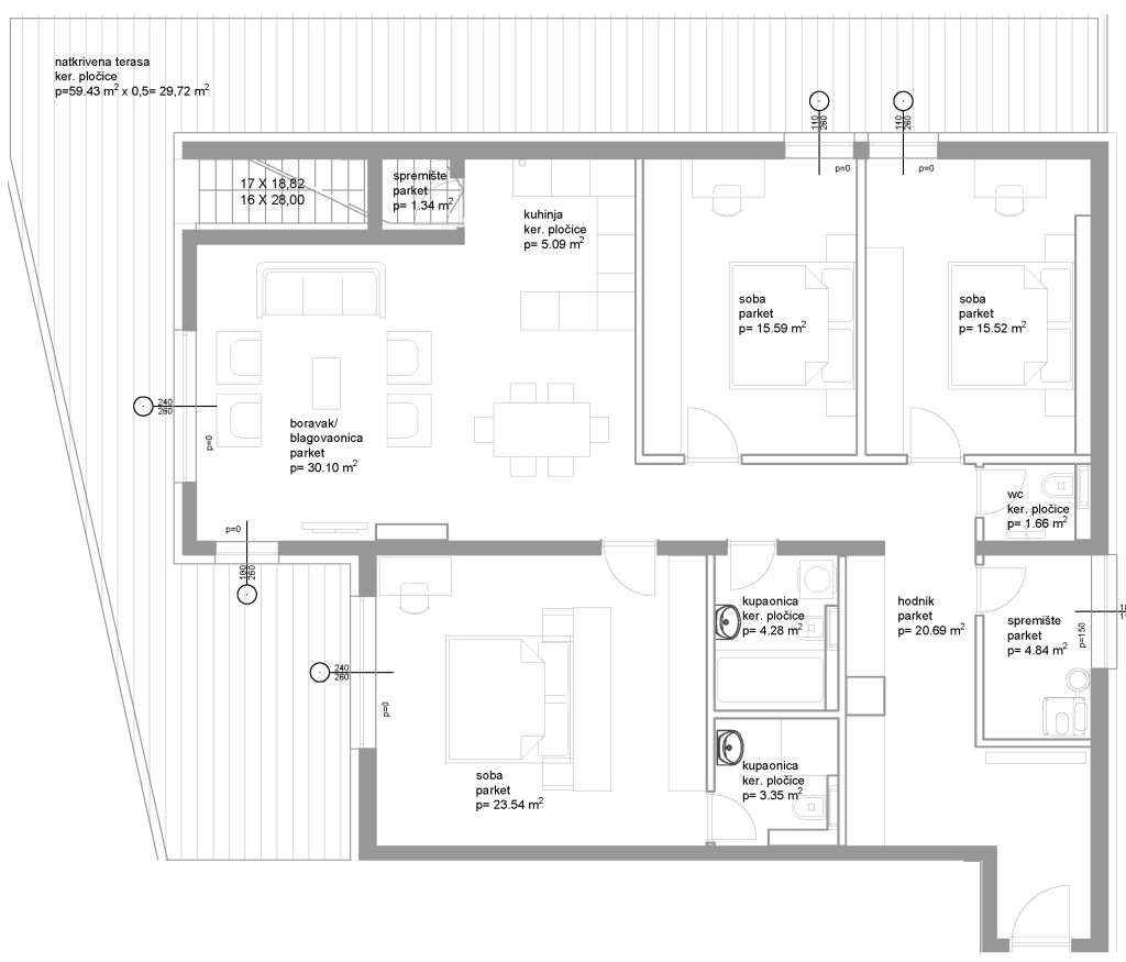
Neto površina stana
| 1. | D. boravak, blag. | 30,10 m² |
| 2. | Kuhinja | 5,09 m² |
| 3. | Spremište | 1,34 m² |
| 4. | Hodnik | 20,69 m² |
| 5. | Kupaonica | 4,28 m² |
| 6. | Soba | 23,54 m² |
| 7. | Kupaonica | 3,35 m² |
| 8. | Soba | 15,59 m² |
| 9. | Soba | 15,52 m² |
| 10. | wc | 1,66 m² |
| 11. | spremište | 4,84 m² |
| 12. | Natkrivena Terasa | 29,72 m² |
| 13. | Krovna Terasa | 44,63 m² |
| 14. | GPM 52 i 53 | 14,85 m² |
215,19 m²
Ukupna neto površina:








