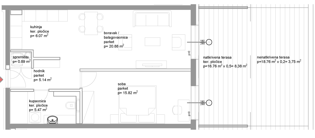
Neto površina stana
| 1. | D. boravak, blag. | 20,88 m² |
| 2. | Kuhinja | 6,07 m² |
| 3. | Kupaonica | 5,47 m² |
| 4. | Hodnik | 5,14 m² |
| 5. | Spremište | 0,89 m² |
| 6. | Soba | 15,82 m² |
| 7. | Nenatkrivena terasa | 3,75 m² |
| 8. | Natkrivena Terasa | 8,38 m² |
| 9. | GPM 60 | 6,88 m² |
73,28 m²
Ukupna neto površina:







