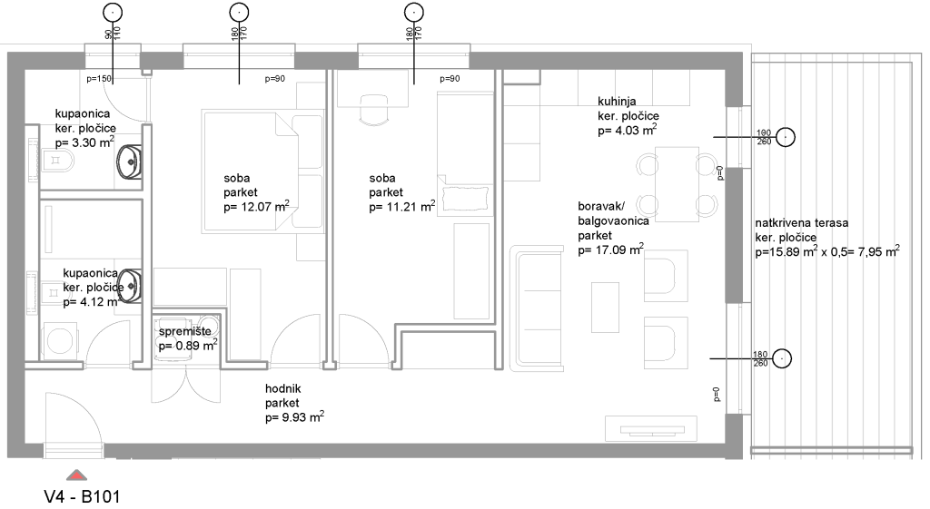
Stan B101 1. kat

Neto površina stana

1. D. boravak, blag. 17,09 m²
2. Kuhinja 4,03 m²
3. Hodnik 9,93 m²
4. Kupaonica 4,12 m²
5. Soba 12,07 m²
6. Kupaonica 3,30 m²
7. Soba 11,21 m²
8. Spremište 0,89 m²
9. Natkrivena Terasa 7,95 m²
10. GPM 96 i 97 18,07 m²
88,65

Ukupna neto površina:

PDF katalog stana

Pozicija stana na naselju

1

Pozicija stana na etaži

1

Pozicija parkirnog mjesta

1