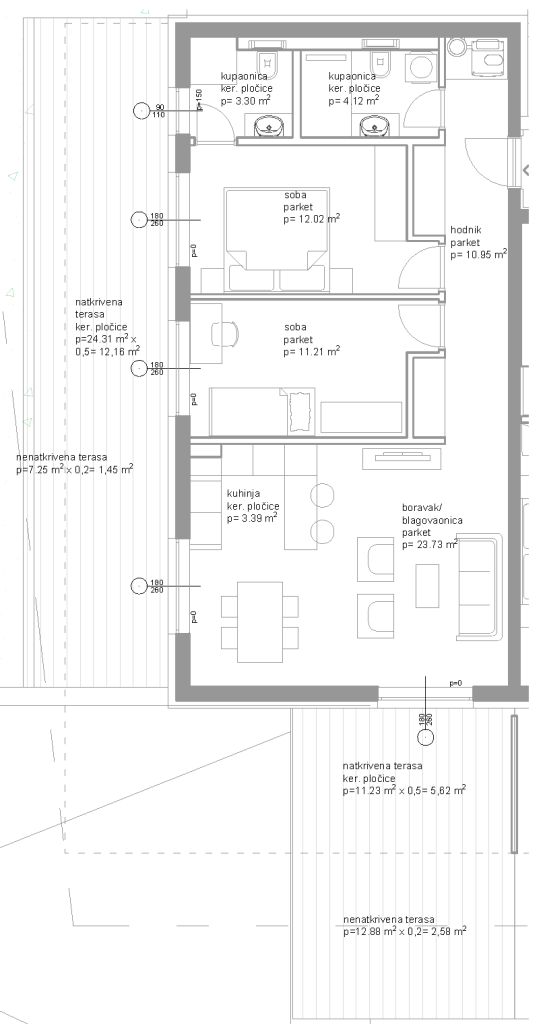
Stan C001 prizemlje

Neto površina stana

1. D. boravak, blag. 23,73 m²
2. Kuhinja 3,39 m²
3. Hodnik 10,95 m²
4. Kupaonica 4,12 m²
5. Soba 12,02 m²
6. Kupaonica 3,30 m²
7. Soba 11,21 m²
8. Nenatkrivena terasa 2,58 m²
9. Natkrivena Terasa 5,62 m²
10. Nenatkrivena terasa 1,45 m²
11. Natkrivena Terasa 12,16 m²
12. GPM 1 i 2 17,93 m²
108,44

Ukupna neto površina:

PDF katalog stana

Pozicija stana na naselju

1

Pozicija stana na etaži

1

Pozicija parkirnog mjesta

1