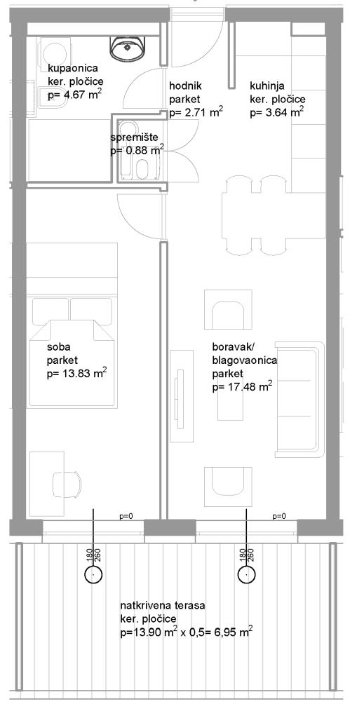
Stan C204 2. kat

Neto površina stana

1. D. boravak, blag. 17,48 m²
2. Kuhinja 3,64 m²
3. Hodnik 2,71 m²
4. Spremište 0,88 m²
5. Kupaonica 4,67 m²
6. Soba 13,83 m²
7. Natkrivena Terasa 6,95 m²
8. GPM 43 i 76 13,75 m²
63,91

Ukupna neto površina:

PDF katalog stana

Pozicija stana na naselju

1

Pozicija stana na etaži

1

Pozicija parkirnog mjesta

1
2