Hrvatski
Hrvatski
hr
English
Engleski
en
Deutsch
Njemački
de
Početna
O projektu
Lokacija
Foto Galerija
Menu
Menu
Naselje
V4 zgrade
Garaža
Prizemlje
1. kat
2. kat
3. kat
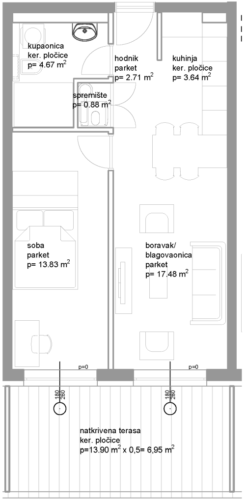
Stan
C207
2. kat
Neto
površina
stana
1.
D. boravak, blag.
17,48 m²
2.
Kuhinja
3,64 m²
3.
Hodnik
2,71 m²
4.
Spremište
0,88 m²
5.
Kupaonica
4,67 m²
6.
Soba
13,83 m²
7.
Natkrivena Terasa
13,90 m²
8.
GPM 87 i 88
30,12 m²
65
,
22
m²
Ukupna neto površina:
PDF katalog
stana
Tlocrt stana
Preuzmite PDF katalog stana
Pozicija stana na
naselju
1
Pozicija stana na
etaži
1
Pozicija
parkirnog
mjesta
1
C206
C208
Scroll to top