Hrvatski
Hrvatski
hr
English
Engleski
en
Deutsch
Njemački
de
Početna
O projektu
Lokacija
Foto Galerija
Menu
Menu
Naselje
V4 zgrade
Garaža
Prizemlje
1. kat
2. kat
3. kat
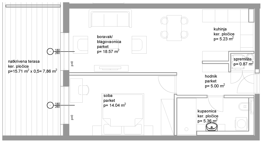
Stan
D101
1. kat
Neto
površina
stana
1.
D. boravak, blag.
18,57 m²
2.
Kuhinja
5,23 m²
3.
Hodnik
5,00 m²
4.
Kupaonica
5,36 m²
5.
Soba
14,04 m²
6.
Spremište
0,87 m²
7.
Natkrivena Terasa
7,86 m²
8.
GPM 181
11,49 m²
68
,
42
m²
Ukupna neto površina:
PDF katalog
stana
Tlocrt stana
Preuzmite PDF katalog stana
Pozicija stana na
naselju
1
Pozicija stana na
etaži
1
Pozicija
parkirnog
mjesta
1
C108
D102
Scroll to top