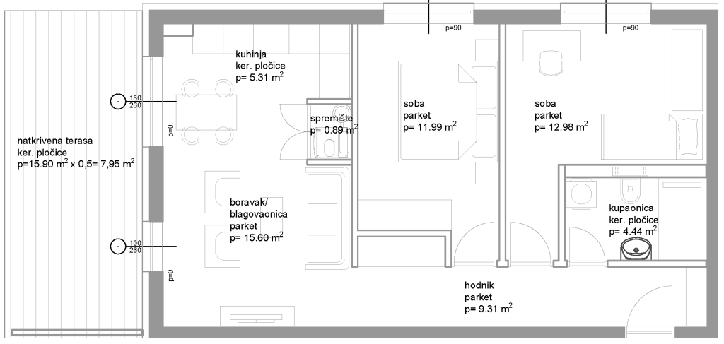
Stan D202 2. kat

Neto površina stana

1. D. boravak, blag. 15,60 m²
2. Kuhinja 5,31 m²
3. Kupaonica 4,44 m²
4. Hodnik 9,31 m²
5. Spremište 0,89 m²
6. Soba 11,99 m²
7. Soba 12,98 m²
8. Natkrivena Terasa 7,95 m²
9. GPM 138 i 139 19,83 m²
88,30

Ukupna neto površina:

PDF katalog stana

Pozicija stana na naselju

1

Pozicija stana na etaži

1

Pozicija parkirnog mjesta

1