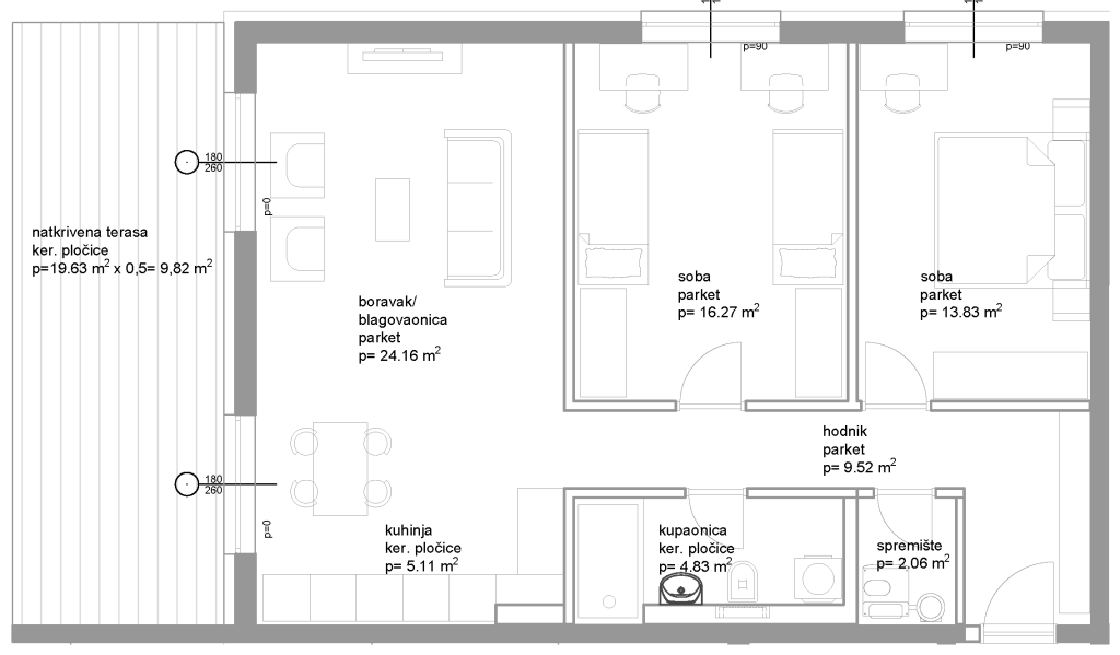
Neto površina stana
| 1. | D. boravak, blag. | 24,16 m² |
| 2. | Kuhinja | 5,11 m² |
| 3. | Hodnik | 9,52 m² |
| 4. | Kupaonica | 4,83 m² |
| 5. | Soba | 16,27 m² |
| 6. | Soba | 13,83 m² |
| 7. | Hidortank | 2,06 m² |
| 8. | Natkrivena Terasa | 9,82 m² |
| 9. | GPM 184 i 185 | 20,36 m² |
105,95 m²
Ukupna neto površina:







