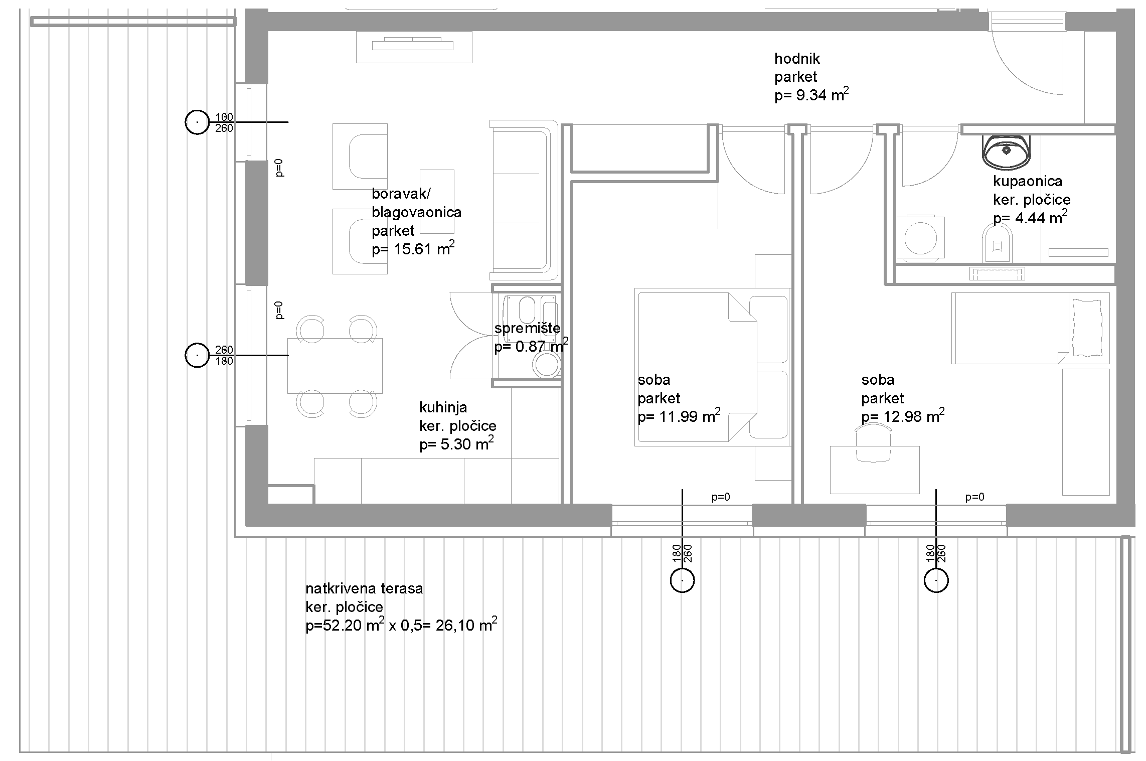
Neto površina stana
| 1. | D. boravak, blag. | 15,61 m² |
| 2. | Kuhinja | 5,30 m² |
| 3. | Kupaonica | 4,44 m² |
| 4. | Hodnik | 9,34 m² |
| 5. | Spremište | 0,87 m² |
| 6. | Soba | 11,99 m² |
| 7. | Soba | 12,89 m² |
| 8. | Natkrivena Terasa | 26,10 m² |
| 9. | GPM 162 i 163 | 16,37 m² |
102,91 m²
Ukupna neto površina:







