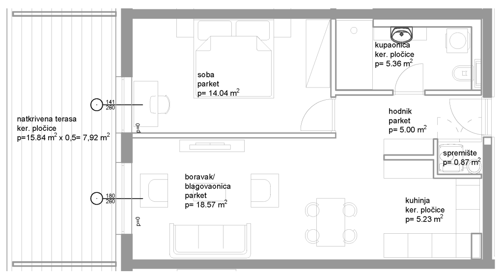
Stan E206 2. kat

Neto površina stana

1. D. boravak, blag. 18,57 m²
2. Kuhinja 5,23 m²
3. Hodnik 5,00 m²
4. Spremište 0,87 m²
5. Kupaonica 5,36 m²
6. Soba 14,04 m²
7. Natkrivena Terasa 15,84 m²
8. GPM 123 19,11 m²
66,55

Ukupna neto površina:

PDF katalog stana

Pozicija stana na naselju

1

Pozicija stana na etaži

1

Pozicija parkirnog mjesta

1