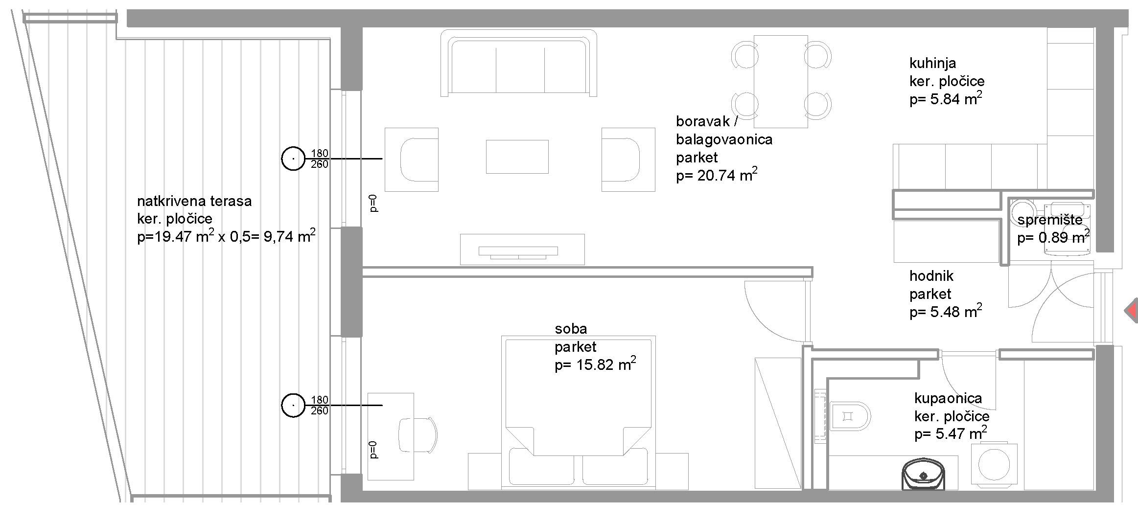
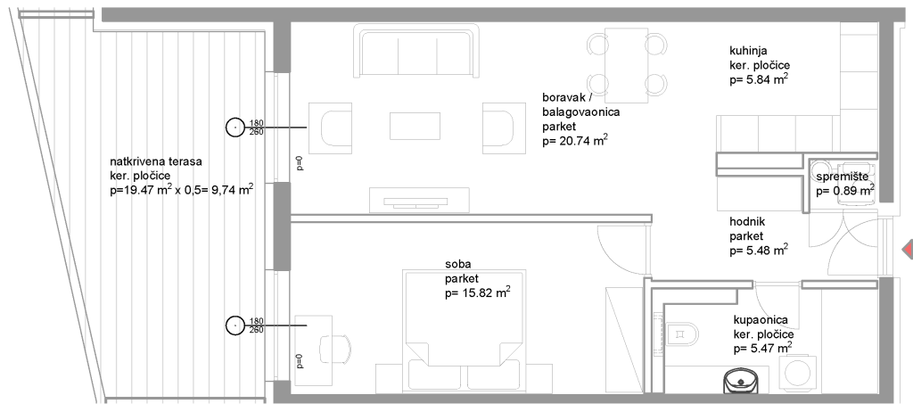
Neto površina stana
| 1. | D. boravak, blag. | 24,14 m² |
| 2. | Kuhinja | 5,88 m² |
| 3. | Hodnik | 12,04 m² |
| 4. | Kupaonica | 4,25 m² |
| 5. | Soba | 15,80 m² |
| 6. | Kupaonica | 3,36 m² |
| 7. | Soba | 12,96 m² |
| 8. | Spremište | 0,89 m² |
| 9. | Natkrivena Terasa | 21,74 m² |
| 10. | GPM 23 i 24 | 16,42 m² |
81,12 m²
Ukupna neto površina:







