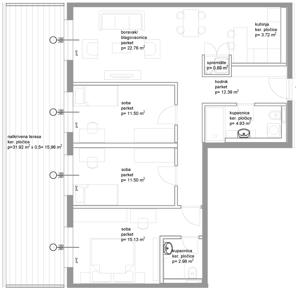
Neto površina stana
| 1. | D. boravak, blag. | 22,76 m² |
| 2. | Kuhinja | 3,72 m² |
| 3. | Hodnik | 12,39 m² |
| 4. | Spremište | 0,89 m² |
| 5. | Kupaonica | 4,93 m² |
| 6. | Soba | 11,50 m² |
| 7. | Soba | 11,50 m² |
| 8. | Soba | 15,13 m² |
| 9. | Kupaonica | 2,98 m² |
| 10. | Natkrivena Terasa | 31,92 m² |
| 11. | GPM 25 i 26 | 32,84 m² |
118,18 m²
Ukupna neto površina:







