Hrvatski
Hrvatski
hr
English
Engleski
en
Deutsch
Njemački
de
Početna
O projektu
Lokacija
Foto Galerija
Menu
Menu
Naselje
V4 zgrade
Garaža
Prizemlje
1. kat
2. kat
3. kat
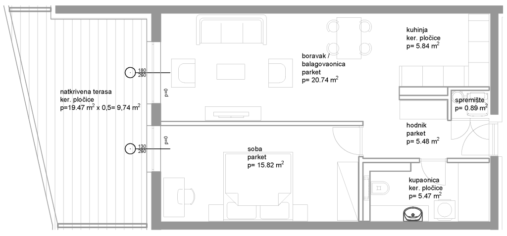
Stan
A202
2. kat
Neto
površina
stana
1.
D. boravak, blag.
20,74 m²
2.
Kuhinja
5,84 m²
3.
Kupaonica
5,47 m²
4.
Hodnik
5,48 m²
5.
Spremište
0,89 m²
6.
Soba
15,82 m²
7.
Natkrivena Terasa
9,74 m²
8.
GPM 54 i 55
16,37 m²
80
,
34
m²
Ukupna neto površina:
PDF katalog
stana
Tlocrt stana
Preuzmite PDF katalog stana
Pozicija stana na
naselju
1
Pozicija stana na
etaži
1
Pozicija
parkirnog
mjesta
1
A201
A203
Scroll to top