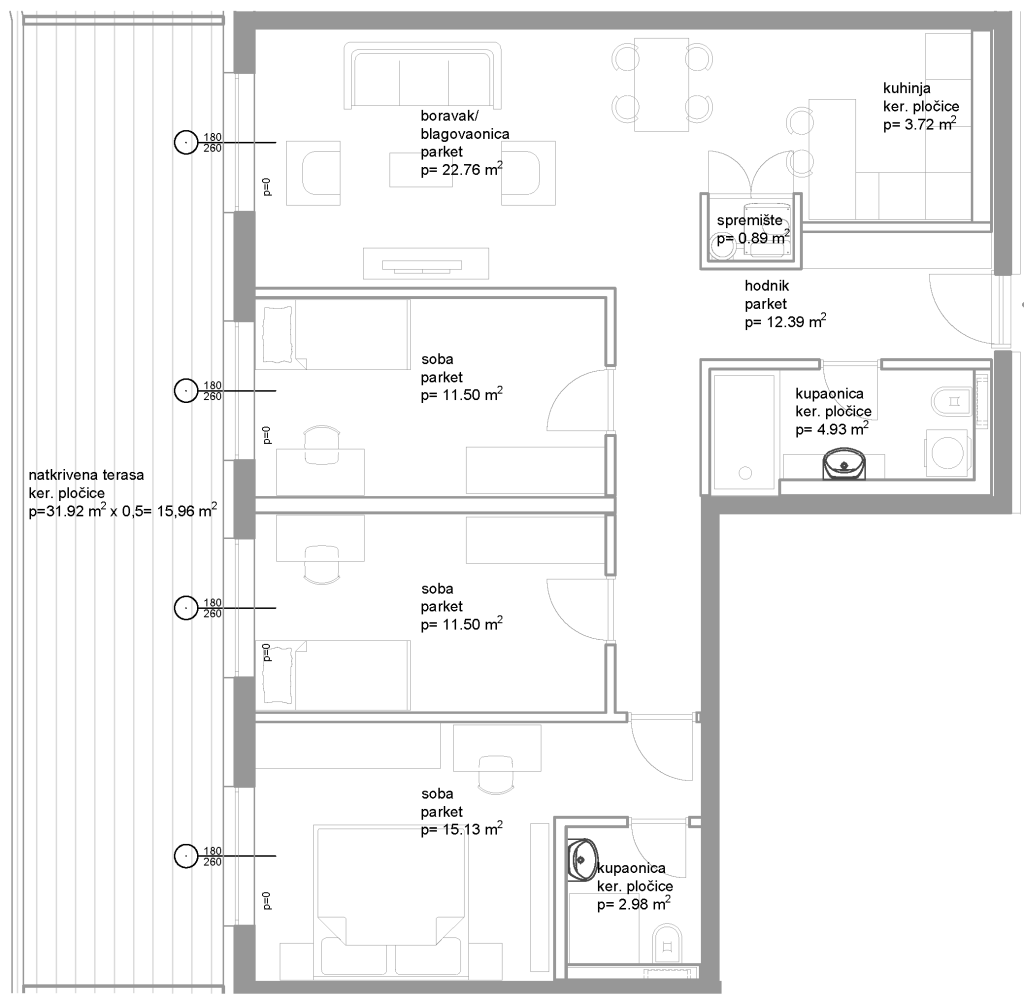
Stan A203 2. kat

Neto površina stana

1. D. boravak, blag. 22,76 m²
2. Kuhinja 3,72 m²
3. Hodnik 12,39 m²
4. Spremište 0,89 m²
5. Kupaonica 4,93 m²
6. Soba 11,50 m²
7. Soba 11,50 m²
8. Soba 15,13 m²
9. Kupaonica 2,98 m²
10. Natkrivena Terasa 31,92 m²
11. GPM 12 i 13 38,93 m²
121,23

Ukupna neto površina:

PDF katalog stana

Pozicija stana na naselju

1

Pozicija stana na etaži

1

Pozicija parkirnog mjesta

1